Listed by Jeff Swayze of Lennar Sales Corp. (6152368076)
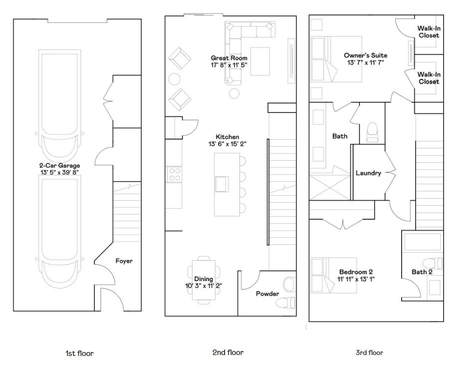
One Lebanon Place is an exciting new master-planned community redeveloped from the Lebanon Outlet Mall, with restaurant, cafe, and retail space, in addition to green space, playground, dog park, pavillion, and grills. These brand new 2-car garage townhomes offer the convenience and lifestyle you've been looking for! This Gatlinburg floorplan features a spacious great room, dining room, and kitchen for entertaining friends, with 2 bedrooms, 2 full baths, plus a half bath. The kitchen is designed with a huge island for seating, 42" shaker style cabinetry, quartz tops, tile backsplash, and stainless steel kitchen appliances. A luxurious primary suite with ceramic tile floor, executive height cabinets, double vanity and quartz top, and oversized walk-in ceramic tile shower. Generously sized second bedroom with private bathroom. LVP flooring in main living areas, LVT in secondary baths and laundry. Luxurious features throughout! Ring doorbell, Schlage keyless entry, Honeywell WIFI thermostat, and more! 2" faux wood blinds on operable windows and stainless steel refrigerator included!

Listing Tools

Property Details of 529 Hinton Street

Property Details

Interior Features

Utilities and Appliances

Community

Other Details

Map Location

 Listings courtesy of Realtracs as distributed by MLS GRID. Based on information submitted to the MLS GRID as of February 14, 2026 12:59 PM EST. All data is obtained from various sources and may not have been verified by broker or MLS GRID. Supplied Open House Information is subject to change without notice. All information should be independently reviewed and verified for accuracy. Properties may or may not be listed by the office/agent presenting the information. IDX information is provided exclusively for consumers’ personal noncommercial use and may not be used for any purpose other than to identify prospective properties consumers may be interested in purchasing. The data is deemed reliable but is not guaranteed by MLS GRID. The use of the MLS GRID Data may be subject to an end user license agreement.

Hi there! How can we help you?

Contact us using the form below or give us a call.

Send Us A Message:

I agree to receive marketing and customer service calls and text messages from Nashville Area Homes. To opt out, you can reply 'stop' at any time or click the unsubscribe link in the emails. Consent is not a condition of purchase. Msg/data rates may apply. Msg frequency varies. Privacy Policy.

Do not fill in this field:

This site is protected by reCAPTCHA and the Google Privacy Policy and Terms of Service apply.

Hi there! How can we help you?

Contact us using the form below or give us a call.

Send Us A Message:

Do not fill in this field:

This site is protected by reCAPTCHA and the Google Privacy Policy and Terms of Service apply.

Hi there! How can we help you?

Contact us using the form below or give us a call.

Send Us A Message:

Do not fill in this field:

This site is protected by reCAPTCHA and the Google Privacy Policy and Terms of Service apply.

Do not fill in this field:

This site is protected by reCAPTCHA and the Google Privacy Policy and Terms of Service apply.

Do not fill in this field:

This site is protected by reCAPTCHA and the Google Privacy Policy and Terms of Service apply.

Do not fill in this field:

This site is protected by reCAPTCHA and the Google Privacy Policy and Terms of Service apply.

$

Do not fill in this field:

This site is protected by reCAPTCHA and the Google Privacy Policy and Terms of Service apply.