Listed by Lisa Paulson of Benchmark Realty,LLC (6154859520)
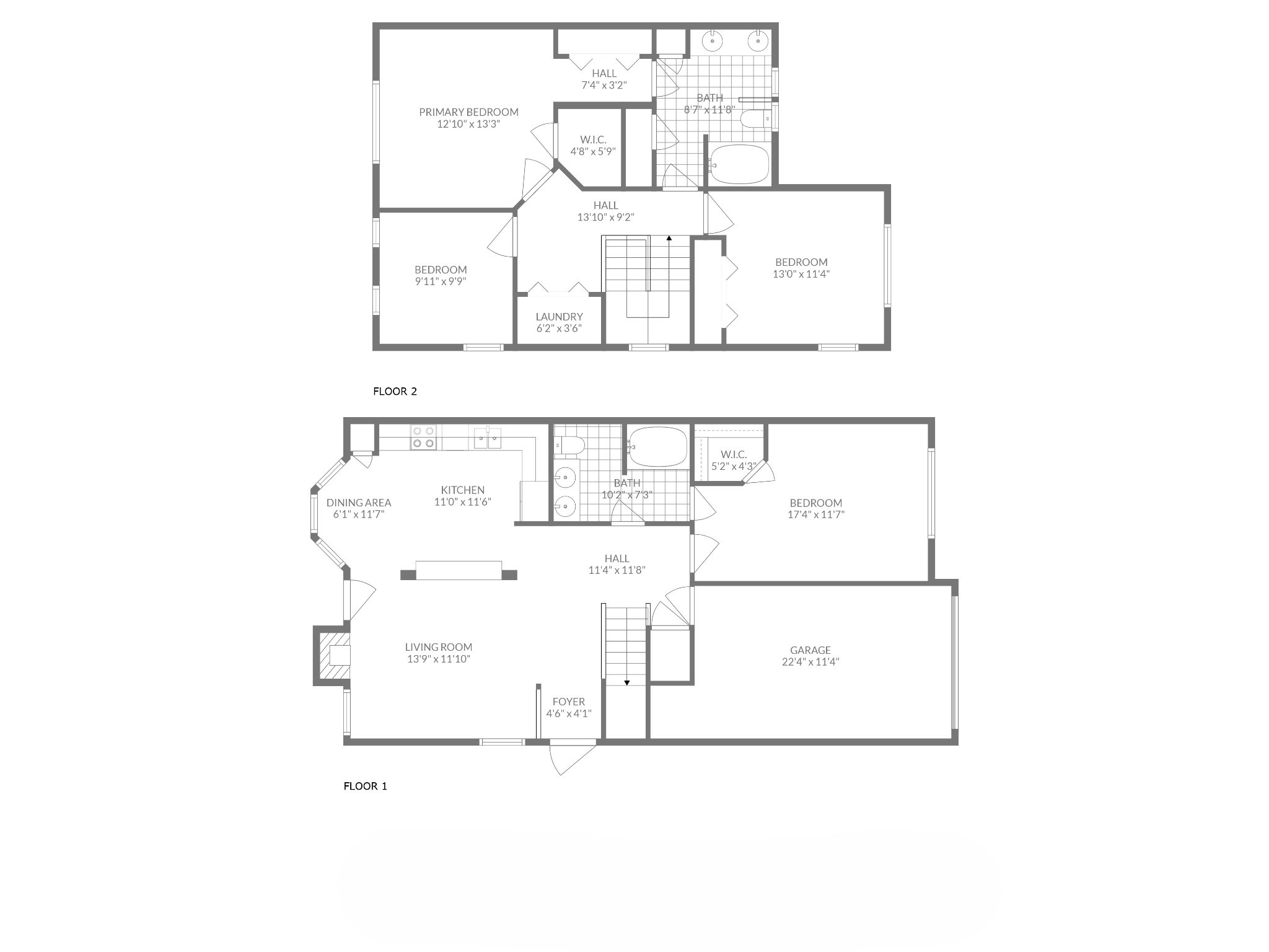
One of only nine units that offer two primary suites. This corner unit boasts an oversized front yard. That's more outdoor space without the maintenance. This unit has it all, style, comfort, and location. Neutral tones throughout the interior allow for your own personal touch when accessorizing. Comfort awaits in the family room with a gas fireplace and a niche for your television and or artwork. Step out of the family room, onto your personal courtyard with fencing for privacy. Spacious eat in kitchen that features a Pass-Thru Window, lots of cabinets, a pantry, stainless-steel appliances, (New Refrigerator) recessed lighting and new granite counter tops. Gas access for optional range conversion. Owners' choice to retreat to the first-floor primary suite with a vaulted ceiling, a walk-in closet, attached bath with double vanity and oversized tub/ shower combo. Venture upstairs and you will find an additional primary suite. This suite features a vaulted ceiling, 2 closets, a walk in and a standard, a large full bath with double vanity and oversized tub /shower combo. Two guest rooms also located on second floor. HVAC installed 2019. Damper System (allows for precise temperature management) added 2020. 40-gallon gas water heater 2020. New carpet installed upstairs. Conveniently located to BNA Airport, Summit TriStar Hospital, shopping, dining, and downtown Nashville. Nestled between Old Hickory and Percy Priest Lake. "Brookside Park" quiet, secluded, easy living!

Listing Tools

Property Details of 747 Tulip Grove Road, Unit 901

Property Details

Interior Features

Utilities and Appliances

Community

Other Details

Map Location

 Listings courtesy of Realtracs as distributed by MLS GRID. Based on information submitted to the MLS GRID as of December 4, 2025 5:35 PM EST. All data is obtained from various sources and may not have been verified by broker or MLS GRID. Supplied Open House Information is subject to change without notice. All information should be independently reviewed and verified for accuracy. Properties may or may not be listed by the office/agent presenting the information. IDX information is provided exclusively for consumers’ personal noncommercial use and may not be used for any purpose other than to identify prospective properties consumers may be interested in purchasing. The data is deemed reliable but is not guaranteed by MLS GRID. The use of the MLS GRID Data may be subject to an end user license agreement.

Hi there! How can we help you?

Contact us using the form below or give us a call.

Send Us A Message:

I agree to receive marketing and customer service calls and text messages from Nashville Area Homes. To opt out, you can reply 'stop' at any time or click the unsubscribe link in the emails. Consent is not a condition of purchase. Msg/data rates may apply. Msg frequency varies. Privacy Policy.

Do not fill in this field:

This site is protected by reCAPTCHA and the Google Privacy Policy and Terms of Service apply.

Hi there! How can we help you?

Contact us using the form below or give us a call.

Send Us A Message:

Do not fill in this field:

This site is protected by reCAPTCHA and the Google Privacy Policy and Terms of Service apply.

Hi there! How can we help you?

Contact us using the form below or give us a call.

Send Us A Message:

Do not fill in this field:

This site is protected by reCAPTCHA and the Google Privacy Policy and Terms of Service apply.

Do not fill in this field:

This site is protected by reCAPTCHA and the Google Privacy Policy and Terms of Service apply.

Do not fill in this field:

This site is protected by reCAPTCHA and the Google Privacy Policy and Terms of Service apply.

Do not fill in this field:

This site is protected by reCAPTCHA and the Google Privacy Policy and Terms of Service apply.

$

Do not fill in this field:

This site is protected by reCAPTCHA and the Google Privacy Policy and Terms of Service apply.